Durchschusshemmende Tore SAFELINE
3
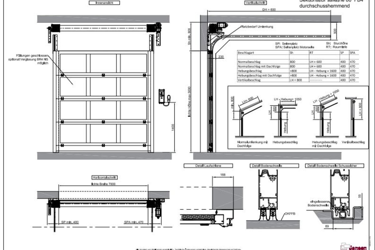
    Sektionaltor SafeLine FB4 NS
Schusssichere Tore kommen dort zum Einsatz, wo erhöhte Sicherheitsanforderungen bestehen. Das ist zum Beispiel auf Flughäfen, Polizeidienststellen, in Banken oder Ministerien der Fall. Mit dem Sektionaltor SAFELINE FB4 NS bieten wir ein Sicherheitstor mit durchschusshemmenden Eigenschaften in der Widerstandsklasse FB4 NS, wobei das „NS“ für „nicht splitternd“ steht und bedeutet, dass der Splitterabgang ins Gebäudeinnere verhindert wird. Diese Tore sind so ausgerüstet, dass sie der kinetischen Energie eines Geschosses standhalten. Im Prüfverfahren wurden verschiedene Kaliber mit unterschiedlichen Waffen auf das Sektionaltor abgefeuert. Unser Tor hielt dabei aus einer Entfernung von fünf Metern einer Faustfeuerwaffe Kaliber 44 Rem. Magnum stand. Unser Sektionaltor SAFELINE FB4 NS lässt sich auf Wunsch auch mit Fenstern der gleichen Widerstandsklasse ausführen. Auch der Einsatz einer Kontaktleiste am unteren Tor ist optional möglich. Um Ihnen den höchstmöglichen Schutz zu bieten, haben wir jetzt auch Kombinationen mit Einbruchschutz bis Schutzklasse RC5 im Portfolio. Bei Toren mit Verglasung erreichen wir RC4. 
                                                                                    
                                            Widerstandsklasse FB4 NS
                                        
                                     
                                                                                    
                                            Geprüft nach DIN EN 1522
                                        
                                     
                                                                                    
                                            Optional mit RC5 Einbruchschutz
                                        
                                     
                     
                             
                             
                             
                             
                     
                                                                                                